消防應急疏散指示系統在某居民社區綜合體項目的應用
【摘要】:消防應急照明和疏散指示系統由控制器、集中電源和燈具(疏散指示燈具、應急照明燈具)等幾部分組成。系統采用17寸工業平板電腦、Windonws7系統,可支持聯動報警、系統監控、故障報警、自檢、備電、記錄存儲與查詢、導光流、權限控制等多項功能,具有集中控制、靈活度高和可靠性強等特點。配合超薄標志燈與多款安裝方式不同、光效不同的應急照明燈具,適用于區域內存在多種建筑類型,如幼兒園、小區、商業大樓、社區醫院等,具有范圍廣、單體建筑多、防火分區多等特點的項目。
【關鍵詞】:集中電源;集中控制;消防應急照明和疏散指示系統;A-C-A100;居民社區綜合體
0 . 前言
隨著經濟與科技的迅猛發展,人們開始追求建筑設施的人性化、現代化,大量高層建筑、特大型建筑,及地下建筑的涌現導致建筑物通道更長、更復雜。隨著人們安全意識的提高,本著以人為本、生命安全為重的想法,對于人員密集、疏散距離長、疏散通道多、拐彎多、環境復雜的建筑,采用傳統的疏散指示方式不能及時對燈具進行維護管理,造成火災時大面積失效產生人員傷亡。為了避免造成群死群傷,實施迅速的應急疏散系統,集中控制型應急照明和疏散指示系統應運而生,可準確實現對各應急燈具的實時監控和控制、日常24小時管理維護,保證系統運行正常,在發生火災時準確、迅速的引導人員到達安全區域,減少人員傷亡。
1. 項目介紹
本項目是居民社區綜合體項目,包括23個小區(189棟主樓及23萬平方米地庫)、2棟幼兒園、1棟商業綜合體、1棟社區醫院,總建筑面積約1140萬平方米,地下總建設面積約470萬平方米。在其中心,布局文化休閑和商業服務功能;環繞公園,布局新一代信息技術等高新產業功能,發展匯集數字城市、數字設計、設計創意、軟件開發等新型產業;在片區西部,布局商務、商業、金融和旅游配套服務功能;在片區東部,建設創業平臺和傳統產業的設計研發設施。依托四個生活居住區布局公共服務中心,結合社區中心和鄰里中心安排商業服務和社會服務功能;在綠帶西側布置輔助配套服務區。要求各場所內應急疏散標志采用消防智能應急疏散指示逃生系統,當火災消防或應急發生時,可通過火災監控系統的煙感探頭等檢測到具體的火災位置,并以通信方式將指令傳輸至本系統的消防主機,以控制場所內疏散標志的箭頭指向,確保人員沿正確的方向逃生及疏散。
2. 現場項目應用產品簡介
2.1 消防應急照明和疏散指示系統
消防應急照明與疏散指示系統由控制器(主機)、集中電源和燈具(疏散指示燈具、應急照明燈具)等幾部分組成。因本項目產品過多,此處只介紹主要產品。
控制器是消防應急照明和疏散指示系統的系統主機。控制器通過總線網絡實時監控各個終端,可以實時上報每個設備及燈具故障。在險情發生時,自動將信息指令發布到每個終端,終端收到指令之后開始工作,如頻閃、開、滅燈等工作,實時指示安全的疏散路線。
集中電源是安裝在建筑物內的備用集中式應急電源裝置。當建筑物發生火災、事故或其他緊急情況時,應急電源可以為消防標志燈、照明燈提供應急供電,保證消防應急照明和疏散指示正常工作。
消防應急照明燈為人員疏散逃生提供照明。其安裝方式有壁掛式、吸頂式、嵌頂式。
疏散應急標志燈具為人員疏散逃生指引方向。其安裝方式有壁掛式、吊掛式、地埋式。
2.2 A-C-A100控制器
2.2.1 產品圖片及技術參數
圖1 A-C-A100產品圖片及技術參數
2.3 集中電源
2.3.1 A-D-0.75KVA-A200L產品圖片及技術參數
圖2 A-D-0.75KVA-A200L產品圖片及技術參數
2.4 燈具
當發生火災時,消防應急標志燈具為人員提供應急疏散的指示方向,左向、右向和雙向的標志燈具一般用于指示疏散的走向,無方向的標志燈具一般用于指示安全出口、樓層和避難間,其安裝方式為壁掛式、地埋式。消防應急照明燈具為人員疏散逃生提供照明,其安裝方式為壁掛式、嵌頂式、吸頂式。
本產品廣泛應用于機場、大型商場、寫字樓等公共場所安全通道出入口、走廊拐角處。
3 現場應用
3.1 系統組網圖
圖3 系統組網圖
3.2 現場部分系統圖
本項目采用的方案是,燈具到集中電源通常二總線用法,集中電源到琴臺控制器中間使用CAN中繼擴展CAN總線支路、延長總線距離。
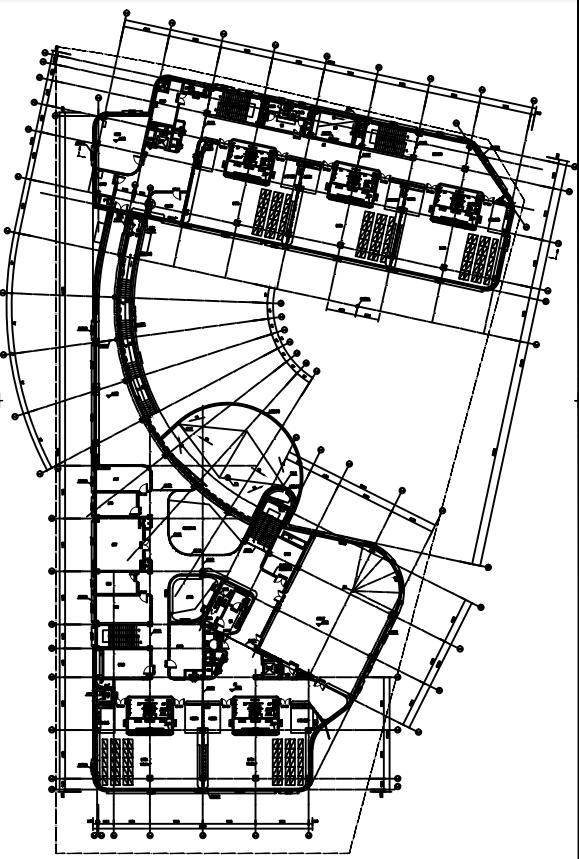
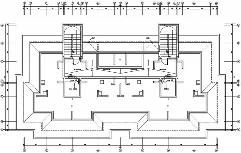
圖4 D1組團樓棟
圖5 幼兒園二層
圖6 90戶型消防平面圖_18-105
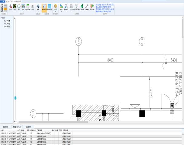
3.3 系統軟件運行界面
系統運行主界面
包含工具欄、平面展示、圖層列表、狀態欄,可以直觀的查看監控設備的運行狀態,并根據狀態欄的現實內容直接切換至故障具體位置
燈具配置界面
可以查看所有燈具狀態與數量
事件記錄界面
可查看歷史操作、故障信息,可按日期進行查詢
3.4 設備現場應用照片
4. 結束語
隨著我國經濟的快速發展,科技的進步,建筑智能化及建筑消防的重視程度也隨之提高,本文分析了本司生產的消防應急照明和疏散指示系統在居民社區綜合體項目的應運,充分展現了在該類項目的組網中簡單、靈活、穩定、低成本的優勢。通過消防應急疏散系統能夠解決傳統消防應急疏散指示系統無集中控制、指示方向固定、疏散線路不能改變、指示效果不理想、安全性能低等問題。
安科瑞電氣著力打造各類火災安防系統的產品,在滿足國家行業標準要求的前提下,為各類建筑提供智能、優良、節能、廉價的消防方案與消防產品,為防火減災、保障人民生命財產安全方面盡一份力!
參考文獻
[1].安科瑞電氣股份有限公司產品選型手冊.2018.01
[2].GB50116-2014 建筑設計防火規范[S].
[3].GB17945-2010《消防應急照明和疏散指示系統》[S].
[4].GB51309-2018《消防應急照明和疏散指示系統技術標準》[S].




掃一掃添加微信